aletsch campus naters

standort
naters vs

bauaufgabe
neubau kompetenz- und besucherzentrums für das UNESCO-welterbe jungfrau-aletsch in naters

projektstand
wettbewerb 5. preis, 2009

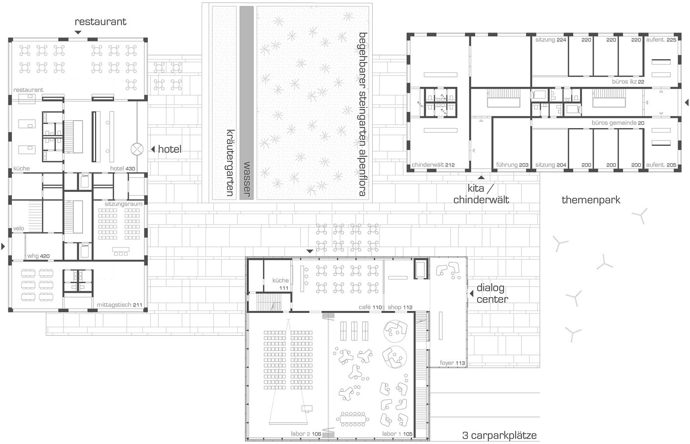
raumprogramm
museum, labors, studienräume, büros, cafeteria, themengarten, wohnungen

bauherrschaft
gemeinde naters

mitarbeit
lucyna zawistowska, viola richard, oliver romppainen, anna beraldo

Vom Konkordiaplatz geht der Blick zwischen den Häusern hindurch in die Bergwelt. Hier treffen Besucher des DialogCenters UNESCO auf Bewohner von Naters und solche, die hier ihrer Arbeit nachgehen. Die Vernetzung mit dem Quartier durch eine fliessende Freiraumfigur öffnet den AletschCampus für vielfältige Kontaktmöglichkeiten und setzt das DialogCenter als pulsierende Stätte in seine Mitte.

Unterschiedliche Nutzungen, lokal verankerte und international ausstrahlende, finden hier einen festen Beziehungsrahmen und ein fruchtbares Feld für einen vitalen Austausch. Eintracht und Harmonie zwischen Mensch und Natur wieder herzustellen und dauerhaft zu bewahren ist eines der wichtigsten Ziele unserer Zeit. Das DialogCenter soll die Besucher hierfür sensibilisieren. Mit der ausgewogenen räumlichen Interpretation des komplexen Raumprogramms wird dazu mit architektonischen Mitteln ein angemessenes Gefäss bereitgestellt.

 
Aletsch Campus Naters
 
 
Aletsch Campus Naters