atelierwohnhaus

standort
zürich gockhausen

bauaufgabe
um- und anbau eines atelierwohnhauses

projektstand
direktauftrag 1996, realisierung 1996 – 1997

raumprogramm
atelierwohnhaus mit pferdestall

bauherrschaft
privat

mitarbeit
markus krieger

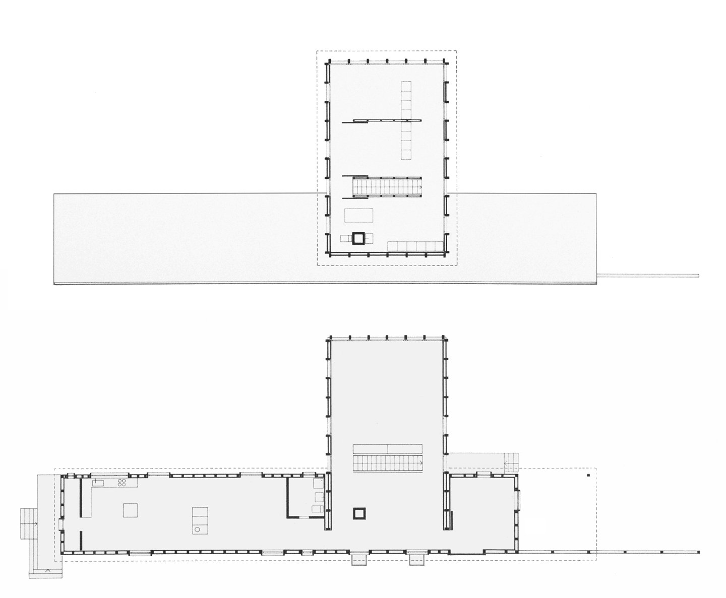
Am Waldrand von Gockhausen stehen die ehemaligen Atelierbauten des konkreten Künstlers Gottfried Honegger. Max Frisch war längere Zeit Gast und hat dort Montauk verfasst. Mit dem zweigeschossigen Anbau in Holzbauweise wird subtil auf die räumlichen Verhältnisse und den Charakter der bestehenden Substanz reagiert.

Mit minimalen Mitteln wird die Wirkung des Provisorischen lebendig erhalten. Aus dem Atelierhaus geht der Blick in die Baumwipfel des nahen Waldes. Im Sockel ist der Stall für die Pferde.

 
Atelierwohnhaus
 
 
Atelierwohnhaus