mfh Regulastrasse

standort
affoltern zh

bauaufgabe
mehrfamilienhaus mit büro im eg

projektstand
direktauftrag 2011, bauvollendung 2017

raumprogramm
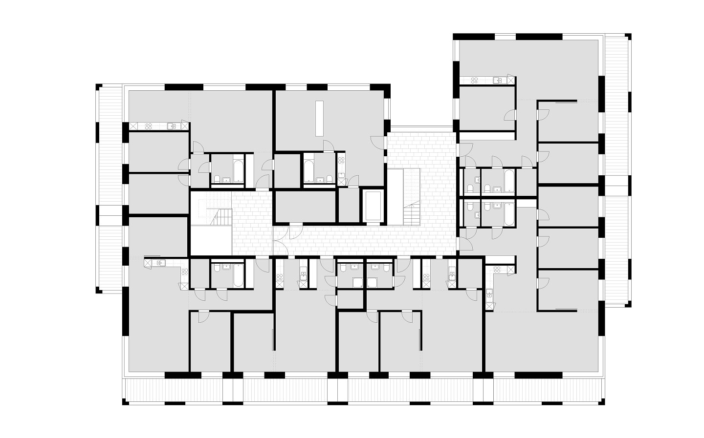
25 mietwohnungen von 57 bis 116 m²

geschossfläche
3711 m² (ohne Einstellhalle)

bauherrschaft
baugenossenschaft waidmatt

mitarbeit
leo habsburg, mierta feuerstein, jose manuel catedra, gisela morera

Der Neubau des Mehrfamilienhauses ist kompakt um einen grosszügigen, inneren Erschliessungsraum organisiert und offeriert 25 wirtschaftliche Genossenschaftswohnungen, welche sich mehrheitlich auch als Alterswohnungen eignen. Im Eingangsgeschoss sind Büroräumlichkeiten mit Aufenthaltsraum Regiebetriebe der Baugenossenschaft und ein Waschsalon angeordnet.

Das neue Mehrfamilienhaus spannt, zusammen mit dem benachbarten Bauernhaus und dem Gemeinschaftspavillon, ein Ensemble mit einem grosszügig gestalteten Aussenraum mit grossem Nussbaum für die Bewohner auf.

 
Mehrfamilienhaus Regulastrasse
 
 
Mehrfamilienhaus Regulastrasse